샌드위치패널, 조립식판넬, 메탈판넬, 라인메탈패널,징크판넬,벽체판,지붕판넬/ 성형강판:루버,징크,지붕 (주)뉴메탈텍 조립식판넬 횡시공 및 종시공시 의자베이스상세도 > 자료실 | <뉴메탈텍/메탈판넬/징크패널/라인판넬/루버강판,쉼터
DB_navi3





자료실

(주)뉴메탈텍 조립식판넬 횡시공 및 종시공시 의자베이스상세도

페이지 정보

작성자 최고관리자 작성일20-01-07 12:53 조회7,431회 댓글0건

첨부파일

본문

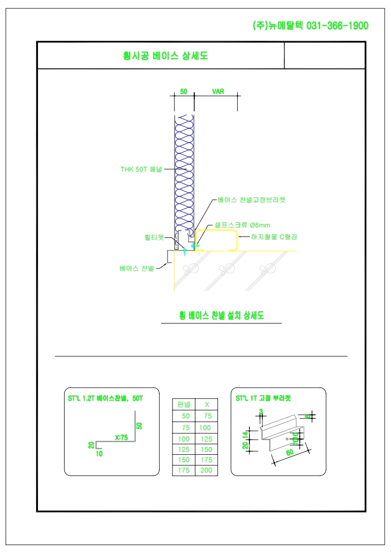
바닥 베이스상세도 입니다.
참고하세요.

■색상이 다양한 라인메탈판넬, 메탈판넬, 징크판넬
■세로메지간격이 자유로운 라인메탈판넬, 메탈판넬
■웨이브에 강한 성형500골, 성형1000골타입 가능
■깔끔한 코너판넬 제작( 이형사이즈 생산가능)
■생산납기빠름, 소량생산가능, 추가물량대응이 빠름
■품질이 우수하고 현장 철골, 창문, 기둥에 맞춤판넬이라
힘들게 현장에서 다시 절단하고 버려지는 판넬이 없고 폐기물 감소,
시공이 쉽고 빨라 공사기간단축등 전체공사비용 15% 절감
제품문의 031-366-1900

댓글목록

등록된 댓글이 없습니다.



경기도 화성시 향남읍 터넉골로 227(발안리1-31) / TEL : 031-366-1900 / FAX : 031-366-4364 / E-mail:3661900@naver.com/사업자등록번호 : 124-87-29449
COPYRIGHT(C)2013 NEW METAL TEC CO.LTD ALL RIGHTS RESERVED

홈페이지내의 모든 문구 및 이미지에 대한 무단 도용 및 복제 사용을 금지하여 저작권은 (주)뉴메탈텍에 있고 무단 복제 사용시 관련법령에 의거 처벌을 받을 수 있습니다.